事務所・店舗・他賃貸検索 | 飯田橋の賃貸ご紹介、管理、リフォームは【昭和27年創業の株式会社松屋】

松屋は飯田橋を中心とした不動産の賃貸管理、賃貸・売買仲介、建築・リフォームを通してお客様の満足度を高めて参ります。

ブログ
お客様の声VO.21
こんにちは、飯田橋の不動産会社(株)松屋...
弊社では当面の間、「ご来店予約制」にて営業致します。
平素は格別なるお引き立てご高配を賜り、厚...
お客様の声VOL.11(賃貸)
こんにちは!飯田橋の不動産会社(株)松屋...
お客様の声VOL.50(賃貸)
こんにちは、飯田橋の不動産会社、松屋です...
TOPページ事務所・店舗・他
  • 物件情報一覧表示
  • 間取一覧表示
  • 外観一覧表示
3件 の検索結果 ( 1 〜 3 件を表示)
表示件数
前の検索結果  前の検索結果

1   

沿線・駅名で昇順に並び替え 沿線・駅名で降順に並び替え 賃料で昇順に並び替え 賃料で降順に並び替え 専有面積で昇順に並び替え 専有面積で降順に並び替え 完成年月で昇順に並び替え 完成年月で降順に並び替え
所在地
沿線
駅名
交通
賃料・坪賃料
管理費・共益費
敷金(保証金)
礼金(敷引)
専有面積
駐車場
物件種別
完成年月
写真
間取り
問い合わせ
候補
詳細 東京都文�
�区水道2
東京メトロ有楽町線
江戸川橋
徒歩 9分/バス-分
19.0 万円 ・ 1.1万円
-円、-円
3 ヶ月
1 ヶ月
56.70m 2
無し
事務所・店舗・他
1992年04月
間取り 写真 カートに追加
候補に追加
ココがオススメ! 「江戸川橋駅」から徒歩9分!新耐震基準・ワンフロア1戸・ルーフバルコニーのある明るい事務所!
詳細 東京都文�
�区後楽2丁目
都営大江戸線
飯田橋
徒歩 3分/バス-分
14.3 万円 ・ 1.1万円
22,000円、-円

0 ヶ月
41.25m 2
無し
事務所・店舗・他
1991年12月
間取り 写真 カートに追加
候補に追加
ココがオススメ! ●1フロア1テナント●大通り沿いに面する好立地!飯田橋駅徒歩3分!内見可能です!是非弊社までお問合せ下さい!
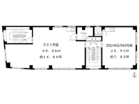
詳細 東京都文�
�区後楽2丁目
総武・中央緩行線
飯田橋
徒歩 3分/バス-分
8.47 万円 ・ 1.1万円
-円、-円

0 ヶ月
25.91m 2
敷地外
事務所・店舗・他
1972年05月
間取り 写真 カートに追加
候補に追加
ココがオススメ! 【仲介手数料無料♪】5路線利用可の飯田橋駅より徒歩3分!目白通りに面した好立地。諸条件応相談可!
前の検索結果  前の検索結果

1   

TOPページ事務所・店舗・他
絞込み検索
※賃料、こだわり条件などを指定して物件を絞り込むことができます。
物件種目
       
賃料設定
築年数
       
面積
m2 m2
駅徒歩
       
交通選択
※CTRL+Clickで複数選択できます。
こだわり条件
   
     
   
     
     
     
 
 
 
     
設定した条件で絞り込み  入力内容のリセット