第六松屋ビル 仲介手数料無料 / 4階 1R 49.06m2 築53年|飯田橋の賃貸ご紹介、管理、リフォームは【昭和27年創業の株式会社松屋】

松屋は飯田橋を中心とした不動産の賃貸管理、賃貸・売買仲介、建築・リフォームを通してお客様の満足度を高めて参ります。

登録・更新日:2025/12/06

第六松屋ビル 

※ 第六松屋ビル は現在募集しておりません。

同一区画の他の物件情報の募集がある場合は、画面下部に募集物件一覧のリストが掲載されております。是非ご覧ください。
最新状況や条件に近い他の物件の紹介希望等ございましたらお気軽にお問いあわせください。

株式会社松屋  

お電話でのお問い合わせ
03-3815-1010
営業時間
9:00~18:00 定休日 日・祭日

外観図

外観タイル貼り南向き。

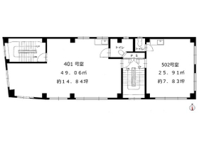
間取り図面

  • 外観タイル貼り南向き。
  • エントランス
  • 室内
  • ミニキッチン
  • 室内
  • 室内
  • エアコンがあります
  • トイレ・洗面
  • トイレ
  • 眺望
  • 室内
  • JR飯田橋駅
  • 駅前商業施設:ラムラ
  • コンビニ:セブンイレブン
  • スーパー:まいばすけっと
  • 都立小石川後楽園

担当者からコメント

****第六松屋ビル 401号室****
◇弊社貸主物件の為、仲介手数料がかかりません!弊社ビルの隣に建っていますので何かございました際にはすぐに対応可能です!
◇5路線利用可能な「飯田橋駅」から徒歩3分!目白通り沿いの好立地。
◇個人事務所にオススメ!倉庫や作業スペース・会議室としても利用できます!
◇エアコン・給湯・温水洗浄便座付トイレあり。
◇諸条件応相談可。是非お問い合わせ下さいませ!

物件詳細情報

基本

アクセス 総武・中央緩行線 飯田橋駅  から 徒歩3分
東京メトロ丸ノ内線 後楽園駅  から 徒歩12分
総武・中央緩行線 水道橋駅  から 徒歩13分
種別 事務所・店舗・他
所在地 東京都文京区後楽2丁目 3-8 学校区 -

建物

間取り 1R  南向き 専有面積 49.06m 2  ( 14.84坪 )
構造 鉄骨造 完成年月 1972年05月 ( 築53年 )
所在階 / 階数 4階  / 5階建 総戸数 -
駐車場 敷地外  ( 月額 43,200円 ) バイク置場 -
駐輪場 - 管理 -
リフォーム - リノベーション -
設備・条件 礼金なし/事務所利用可/即入居可/仲介手数料ゼロ/二階以上/24時間営業可/オフィス向き/エアコン/光ファイバー/駐車場有り/管理物件/仲介手数料OFF物件
定期借家契約3年。
保証金4ヶ月、保証金償却/解約時賃料の1ヶ月分、解約予告3ヶ月、名板料/15000円+税~、鍵交換代15000円+税、水道代:3000円+税
エアコン、トイレ、給湯、光ファイバー、タイルカーペット、24時間使用可能

第六松屋ビルへの お問い合わせは株式会社松屋  まで

株式会社松屋  
112-0004東京都文京区後楽2丁目2番10号 松屋ビル

会社案内

お電話・FAXでのお問い合せ
TEL:03-3815-1010 FAX:03-3815-1028
受付時間
9:00~18:00 定休日 日・祭日

こちらの物件もあります。

  • 東京都文京区後楽

    25万6113円

    59.22m²

    飯田橋駅から徒歩 5分

    候補

  • 東京都新宿区下宮比町

    18万7000円

    43.2m²

    飯田橋駅から徒歩 2分

    候補

  • 東京都新宿区下宮比町

    19万2500円

    48.77m²

    飯田橋駅から徒歩 2分

    候補

  • 東京都文京区後楽

    22万円

    66.12m²

    飯田橋駅から徒歩 9分

    候補